Makléř: Ing. Marek Kotík
Telefon: 722 222 ...
E-mail: marek.k ...
Zobrazit celý kontaktTelefon: 722 222 228
E-mail: marek.kotik@qara.cz
Nemovitost nabízí
QARA s.r.o.
Šafaříkova 201/17, 120 00 Praha 2
Zobrazit kontakt na RK
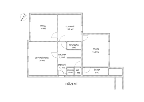
Nabízíme k prodeji dvougenerační cihlový rodinný dům ve vyhledávané rezidenční lokalitě Kladno - Rozdělov, v ulici U zastávky. Dům je ve velmi dobrém technickém stavu, je zateplený polystyrenem o tloušťce 10 cm a střecha je osazena krytinou Bramac. Nemovitost je technicky i funkčně rozdělena na dvě samostatné bytové jednotky, každá má vlastní plynoměr, vodoměr i elektroměr, a zároveň jsou k dispozici dva samostatné vstupy, což umožňuje pohodlné bydlení pro dvě generace, případně kombinaci bydlení a pronájmu. Součástí domu je udržovaná zahrada s řadou praktických doplňkových staveb. K dispozici je dvojgaráž o velikosti 26,5 m2 m2 s vraty na dálkové ovládání, dále samostatná letní prádelna o ploše 6 m2, sklad o velikosti 8 m2, skleník, pergola o výměře 9 m2 a přístřešek s krbem o velikosti 9 m2, který nabízí příjemné zázemí pro posezení. Horní podlaží prošlo kompletní moderní rekonstrukcí a nabízí vysoký standard bydlení. Nachází se zde obývací pokoj s velkým francouzským oknem se vstupem na terasu. Její orientace je jihozápadní a je vybavena zatahovací markýzou. Další obytný prostor je řešen jako otevřený celek propojující obývací část s kuchyňským koutem a jídelnou. K dispozici je ložnice s navazující šatnou, koupelna s WC, praktický kumbál a schodiště do podkroví, kde se nachází další ložnice. Vytápění a ohřev teplé vody zajišťuje plynový kotel Dakon se zásobníkem, v celém podlaží, kromě ložnice je podlahové vytápění řízené termostatem. Toaleta je řešena závěsným systémem Geberit. Interiér doplňují sádrokartonové podhledy a moderní kuchyňská linka se sklokeramickou deskou Schott Ceran, troubou Whirlpool a digestoří. Spodní podlaží je ve velmi zachovalém původním stavu a nabízí dispozici zahrnující chodbu, obývací pokoj, dvě ložnice, kuchyň, šatnu, samostatné WC, koupelnu a vstup do sklepa. Sklep má rozlohu 22 m2. Vytápění zde zajišťuje nový plynový kotel Immergas, ohřev vody je řešen bojlerem Dražice. Na podlahách jsou plovoucí podlahy a koberce, v koupelně je dlažba a sprchový kout. Kuchyně je vybavena troubou a sklokeramickou deskou Electrolux a v ložnici je k dispozici vestavěná skříň. Velkou předností je poloha domu, která kombinuje klidné rezidenční prostředí s výbornou dostupností do centra Kladna a kompletní občanskou vybaveností v okolí. V docházkové vzdálenosti je MHD a modernizovaná vlaková stanice, která zajišťuje velmi dobré spojení s Prahou. V blízkosti se nachází také aquapark, nemocnice, sportoviště Sletiště a vyhledávané gastronomické podniky včetně restaurace Na Letné. V případě zájmu o více informací nebo sjednání prohlídky nás neváhejte kontaktovat.
Prodej, domy/rodinný, 119.18 m2, Pechlátova, Dubí, Kladno, Kladno [ID 83303]
Hledáte nový domov, kde se spojuje kvalita, klid a skvělá dostupnost do města? Máme pro vás výjimečnou nabídku, jedná se o moderní rodinný dvojdům o…
Prodej rodinného domu, 180 m2, Kladno, ul. Třebízského
Nabízím k prodeji prostorný rodinný dům v Kladně, který je skvělou příležitostí pro pohodlné bydlení i výhodnou investici. Dům má dvě nadzemní…