Aktuálně můžete v lokalitě Kladno vybírat z nabídky 40 domů.
Přehled nemovitostí: prodej domy > chaty a chalupy Zpět na přehled nabídek

Prodej chaty 58 m2, Na Hujaru, Babice

470 m2

58 m2

G - Mimořádně nehospodárná

00864

27.01.2026

Cena: 3099360 CZK / objekt

Poslat dotaz k nabídce
Zásady používání osobních údajů

Prodejce

Makléř: Dvořák Petr

Telefon: 732 903 ...

E-mail: dvorak@ ...

Zobrazit celý kontakt

Nemovitost nabízí

Reality Dvořák

Dlouhá 705/16, Praha 1

www.realitydvorak.cz

Zobrazit kontakt na RK

Zobrazit všechny nabídky RK

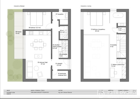
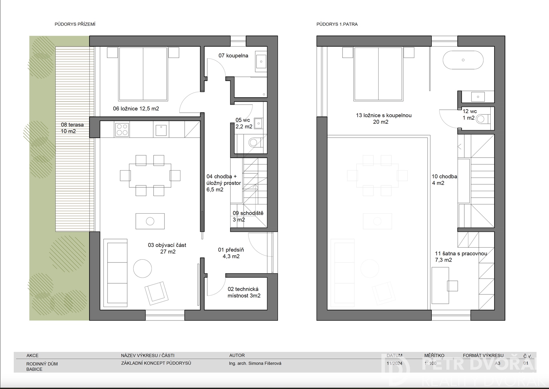
Prodej pozemku pro výstavbu celoročně obytného domu - skvělá alternativa rodinného bydlení v přírodě Nabízíme pozemek o velikosti 470 m2 v atraktivní lokalitě obce Babice u Říčan. Na pozemku se nachází chata o zastavěné ploše 58 m2, která je určena k demolici. Skutečnou hodnotou této nabídky je pozemek s možností výstavby nového celoročně obytného domu o zastavěné ploše až 80 m2 a podlahové ploše až 160 m2 při dvou podlažích. Jedná se o ideální příležitost pro ty, kteří hledají trvalé bydlení v přírodě s výbornou dostupností do Prahy. Jedinečné umístění v sousedství školy Open Gate Pozemek sousedí s otevřeným prostranstvím prestižní školy Open Gate, kde se volně pasou koně, což vytváří klidné a výjimečné prostředí. Lokalita kombinuje blízkost přírody s perfektní dostupností - autem jste v centru Prahy do 30 minut, vlakem z Kolovrat za 20 minut. Do Kolovrat je to 10 minut jízdy autem. Technické parametry a infrastruktura Elektřina: 220 V i 380 V (přívod do spodní části) Voda: Vlastní vrt i kopaná studna Odpad: Septik o kapacitě 1,5 m³ Oplocený pozemek s vrátky přímo k výběhu koní Zděný bazén 5 × 4 m (připravený k obnově) Možnost trvalého pobytu - evidenční číslo Komfortní zázemí a občanská vybavenost Obec Babice nabízí obchod s potravinami, kavárnu, hospodu, tenisové kurty, rugbyové hřiště i celoroční plavecký bazén ve škole Open Gate. Jedná se o lokalitu, která nabízí nejen klid a přírodu, ale i pohodlné zázemí pro každodenní život. Možnosti výstavby dle vašich představ V galerii naleznete inspiraci pro výstavbu moderního domu s otevřeným loftovým konceptem a pochozí střechou, která může sloužit jako terasa. Alternativou je tradiční řešení se sedlovou střechou a dalším pokojem, které může lépe vyhovovat rodinnému bydlení. Prohlídky a kontakt Prohlídky probíhají výhradně v sobotu odpoledne, pouze po předchozí domluvě. Vyhrazeno pro vážné zájemce. Takové příležitosti se objevují zřídka - pozemek s výjimečnou atmosférou a potenciálem pro moderní celoroční bydlení. Nečekejte, až ho objeví někdo jiný - kontaktujte nás ještě dnes.



Nahoru