Makléř: Mgr. Vaněk Dušan
Telefon: 607 000 ...
E-mail: dreampr ...
Zobrazit celý kontaktTelefon: 607 000 021
E-mail: dreampraha@century21.cz
Nemovitost nabízí
CENTURY 21 Dream
Radlická 759/32, 120 00 Praha 2
www.century21.cz/kancelar-dream-247
Zobrazit kontakt na RK
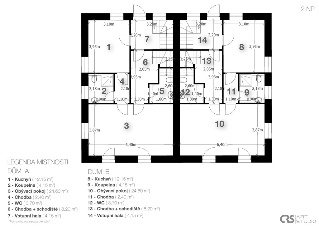
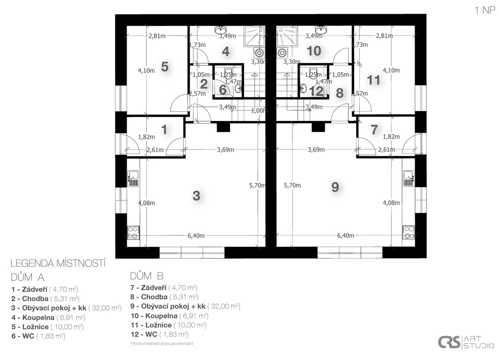
Rodinný dům se nachází v klidné rezidenční části Nad Vinicemi v Benátkách nad Jizerou. Nabízí otevřený a ničím nerušený výhled do okolní krajiny a pocit prostoru, klidu a soukromí. Moderní rodinný dům byl kolaudován v roce 2014 a je vhodný jak pro více generační bydlení, tak jako investiční příležitost s možností pronájmu jednotlivých bytových jednotek. Dispoziční řešení: Nemovitost má dvě samostatné poloviny, přičemž každá z nich obsahuje dvě bytové jednotky s dispozicemi 2+kk a 3+1. Celkem tak dům nabízí čtyři samostatné bytové jednotky, které lze využívat odděleně nebo je vzájemně propojit dle potřeb nového majitele. Dům má tři nadzemní podlaží. Základní údaje: • celková užitná plocha: 393 m2 • obytná plocha: 352,8 m2 • sklepní prostory: 40 m2 • pozemek: 881 m2 • zahrada: 716 m2 • parkování: 6 parkovacích míst Interiér: Interiér domu působí světle, vzdušně a nadčasově. Prostor je charakteristický dřevěnými podlahami, přiznanými dřevěnými trámy a dostatkem denního světla, které vytvářejí příjemnou a klidnou atmosféru. Technické zázemí: Dům je napojen na veřejný vodovod, elektřinu a plyn. Vytápění je řešeno plynovým kotlem, který taktéž zabezpečuje ohřev teplé vody. V bytech 2+kk jsou navíc krbové vložky. Součástí domu jsou sklepní prostory, které poskytují dostatek místa. Pozemek a okolí: Pozemek o výměře 881 m2 nabízí dostatek prostoru pro vytvoření zahrady a venkovního zázemí dle vlastních představ. Vyšší poloha domu zajišťuje jak výhled, tak i pocit soukromí v rámci rezidenční zástavby. Lokalita: Benátky nad Jizerou poskytují kompletní občanskou vybavenost - školy, školky, obchody, restaurace i zdravotnická zařízení. Lokalita má dobrou dopravní dostupnost a zároveň si zachovává klidný rezidenční charakter. Více informací vám poskytne realitní makléř, který vás zároveň rád osobně pozve na prohlídku tohoto moderního výjimečného domu.
Prodej rodinného domu, 178 m2, Benátky nad Jizerou
Nabízíme k prodeji jedinečný rodinný dům v srdci Benátek nad Jizerou. Tento cihlový dům s užitnou plochou 178 m2 a pozemkem o rozloze 332 m2 nabízí…
Prodej, RD, Benátky nad Jizerou, pozemek 332m2, zastavěná plocha 118m2, Středočeský kraj
Prodej domu v regionu Mladá Boleslav. Nabízíme k prodeji RD v Benátkách nad Jizerou, ulice Miroslava Soumara s veškerou dostupnou a občanskou…