Aktuálně můžete v lokalitě Kladno vybírat z nabídky 40 domů.
Přehled nemovitostí: prodej domy > rodinné domy Zpět na přehled nabídek

Prodej rodinného domu 102 m2, Medonosy - Chudolazy

1 181 m2

102 m2

B - Velmi úsporná

25243

16.02.2026

Cena: 10690000 CZK / objekt
Poznámka k ceně: Cena včetně právních a realitních služeb a provize RK 1

Poslat dotaz k nabídce
Zásady používání osobních údajů

Prodejce

Makléř: Novák Tomáš

Telefon: 777 990 ...

E-mail: tomas.n ...

Zobrazit celý kontakt

Nemovitost nabízí

Aktivreality

28. října 919, 277 11 Neratovice

www.aktivreality.cz

Zobrazit kontakt na RK

Zobrazit všechny nabídky RK

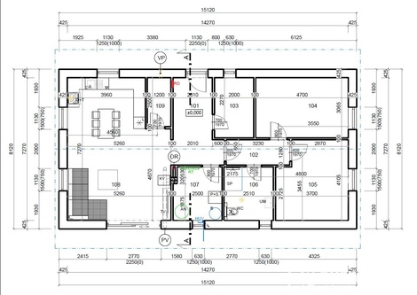
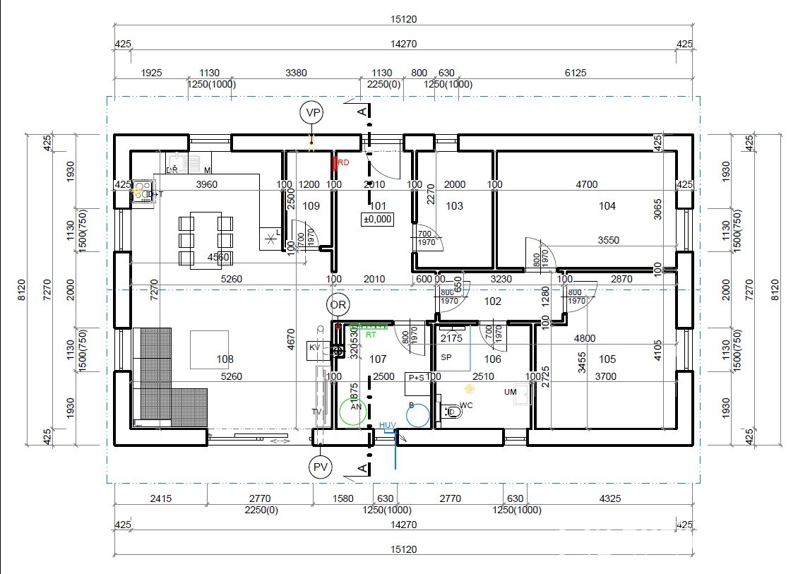
Nabízím ke koupi nový rodinný dům v klidné části obce Chudolazy, situovaný v jedné z nejžádanějších lokalit chráněné krajinné oblasti Kokořínsko. Tato oblast je vyhlášená čistou přírodou, rozlehlými lesy, skalními útvary a množstvím turistických i cyklistických tras. Lokalita je ideální pro ty, kteří hledají klidné bydlení v bezprostředním kontaktu s přírodou, a přitom nechtějí ztratit dobrou dopravní dostupnost do města. Dům je navržen s dispozicí 3+kk a celkovou užitnou plochou 102 m2. Obytná část se nachází v přízemí, podkroví je možné využít jako půdní prostor vhodný ke skladování. Dominantou interiéru je prostorný obývací pokoj s kuchyňským koutem a spíží o velikosti 38,45 m2, který poskytuje dostatek prostoru pro rodinný život i společná setkání. Dále jsou zde dva samostatné pokoje o velikosti 14,5 m2, šatna o ploše 6,2 m2, koupelna s toaletou 6,8 m2 a technická místnost o stejné velikosti. Vstupní chodba a zádveří zaujímají 14,2 m2. Vytápění domu je řešeno podlahovým topením. Primárním zdrojem tepla je krb s výměníkem, který zajišťuje efektivní vytápění celého domu. Alternativně je možné dům vytápět a zároveň ohřívat teplou vodu pomocí elektrokotle. Dům je napojen na obecní vodovod, elektrickou přípojku a odpad je řešen vlastní čističkou odpadních vod. Součástí pozemku je zahradní domek o velikosti 40 m2, jímka na dešťovou vodu, okrasné jezírko, udržovaná zahrada a kompletní oplocení. Vše je navrženo s důrazem na funkčnost, estetiku a přirozené začlenění do okolní krajiny. Pozemek o velikosti 1181 m2 se nachází na okraji obce, obklopený lesy a minimální okolní zástavbou, což zajišťuje maximální soukromí a klid. Okolní příroda nabízí celoroční možnosti pro pěší turistiku, cyklovýlety, houbaření i relaxaci. Přesto je lokalita velmi dobře dostupná - autem se dostanete přibližně za 20 minut do Mělníka a za cca 47 minut do Prahy na metro Letňany. Nemovitost je aktuálně ve fázi hotové hrubé stavby s možností dokončení na klíč dle vašich představ. Kolaudace je plánována na léto 2026, což novému majiteli poskytuje dostatek času přizpůsobit si finální podobu domu podle vlastních potřeb. Pokud Vás nabídka zaujala, neváhejte mě kontaktovat pro více informací či sjednání osobní prohlídky.



Nahoru