Makléř: Miroslava Tichá
Telefon: 800 103 ...
E-mail: zakazni ...
Zobrazit celý kontaktTelefon: 800 103 010, 800 103 010
E-mail: zakaznicky.servis@rksting.cz
Nemovitost nabízí
Realitní kancelář STING, s.r.o.
1.máje 540, 739 61 Třinec
Zobrazit kontakt na RK800 103 010
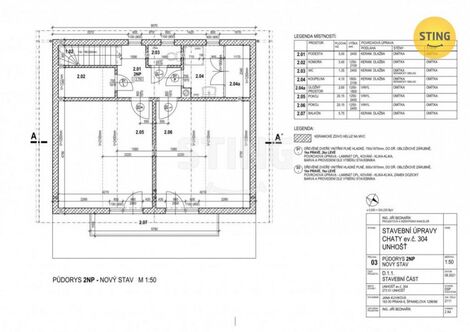
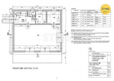
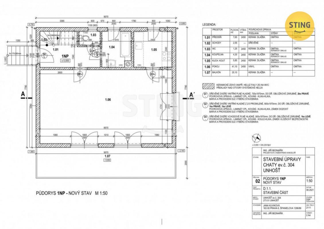
Na tuto nemovitost se vztahuje akce Realitní a investiční skupiny STING se zvýhodněnou koupí. Podrobnosti akce jsou zveřejněny v podmínkách [na webu skupiny STING]. Pro bližší informace o možné slevě volejte makléři. SLEVA: Nabízíme k prodeji rozestavěný dům o velikosti 72 m2 na souboru dvou pozemků o celkové výměře 1 151 m2 v klidné a velmi vyhledávané rekreační chatové oblasti u Dědkova Mlýna, v katastrálním území Unhošť (okr. Kladno), pouhých 20 km západně od Prahy. Na první parcele o velikosti 467 m2 se nachází dva dřevníky a rozestavěná chata s platným stav. povolením se zastavěnou plochou 72 m2. Objekt je ve stavu hrubé stavby z r. 2022 s plánovanou dispozicí: Přízemí: prostorný obývací pokoj s přirozeným světlem a krásným výhledem do údolí. Místnost pro kuchyňský kout, koupelna s toaletou (příprava na instalace) Patro: příprava pro 2 ložnice, šatnu, koupelnu Interiér je připraven k dokončení podle vlastního stylu ideální pro ty, kteří hledají projekt s potenciálem a možností individuálního řešení. Druhá parcela přímo navazuje na první a dnes slouží jako rozšíření zahrady a současně také příjezdová cesta k chatě. Na pozemku se dříve nacházela původní chata (již odstraněná), což může do budoucna umožnit opětovné umístění rekreační stavby dle případného budoucího posouzení příslušných orgánů. Součástí je také garáž ve svahu s přístupem z obecní komunikace. Inženýrské sítě: studna, dotažené odpady, příprava na ČOV, přívod elektřiny Pozemky jsou v osobním vlastnictví a přístup zajištěn z obecní komunikace. Oblast u Dědkova Mlýna je známá svým krásným okolím, lesy, cyklo stezkami. Najdete zde naprosté soukromí, příjemné prostředí a zároveň rychlou dostupnost do Prahy i Kladna. Lokalita je vyhledávána pro rekreaci, chataření, ale také pro možnost celoročního bydlení vzhledem k okolní zástavbě. V případě více zájemců si majitel vyhrazuje právo prodat nejvýhodnější nabídce. Do konce února 2026 nabízíme prostřednictvím našeho partnera úrokové sazby od 4,29 % p.a. Více informací Vám sdělí náš specialista na prohlídce. <a href="https://www.eurobydleni.cz/byty/1_1/ceske-budejovice/obec-ceske-budejovice/prodej/"><strong>Prodej bytu 1+1 České Budějovice</strong></a>
Prodej moderního domu s dvougaráží v rodinném resortu 30minut od centra Prahy
Rádi byste bydleli v moderním domě v uceleném rezidenčním projektu u rybníka, lesa a zároveň do půl hodiny autem do širšího centra Prahy? Poté resort…
Prodej rodinného domu, 320 m2, Unhošť-Nouzov, ul. Unhošťská
Hledáte bydlení, kde se luxus nenásilně prolíná s nadčasovou historií? Představujeme vám exkluzivní prvorepublikovou vilu v Unhošti-Nouzově, která…
Prodej rodinného domu Unhošť na Eurobydleni.cz