Makléř: Karlíková Lucie
Telefon: 603 306 ...
E-mail: lucie.k ...
Zobrazit celý kontaktTelefon: 603 306 046
E-mail: lucie.karlikova@aktivreality.cz
Nemovitost nabízí
Aktivreality
28. října 919, 277 11 Neratovice
Zobrazit kontakt na RK
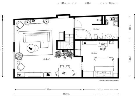
Nabízíme k prodeji jedinečný rodinný dům z roku 1887 s kamennými základy, který spojuje kouzlo historické architektury s moderním bydlením a výhodnou investicí. Nachází se v samotném srdci Staré Boleslavi a z uzavřeného dvorku nabízí nádherný výhled na kostel Nanebevzetí Panny Marie. Dům o dispozici 2+1 je ve výborném technickém stavu a nevyžaduje žádné úpravy. Pro více informací se podívejte na webové stránky uvedené na fotografiích a videu. Přízemí V přízemí se nachází vstupní chodba, technická místnost s prostorem pro pračku a sušičku, toaleta, špajz a kuchyně s jídelnou orientovaná do zahrádky. Patro Po dřevěném schodišti vystoupáte do patra, kde vás čeká prostorný obývací pokoj s krbovými kamny, ložnice a koupelna se sprchovým koutem i vanou. Dům nabízí mnoho dispozičních možností - díky rozvodům vody a odpadu v obývacím pokoji je možné vytvořit druhou kuchyni nebo prostor rozdělit na dvě samostatné bytové jednotky. Komerční prostor Součástí domu je také komerční prostor o velikosti 35 m2 s vlastním sociálním zázemím a skladem. V současnosti je pronajat stabilnímu nájemci - optice - s ročním výnosem 180 000 Kč. Prostor má samostatný vstup i elektroměr, což zajišťuje přehledné oddělení od obytné části. Vytápění a ohřev vody zajišťuje kondenzační plynový kotel (stáří 6 let). Za domem se nachází uzavřená zahrádka s terasou a studnou, ideální pro klidné posezení a soukromí. Z terasy se otevírá jedinečný výhled na historické centrum města. - dispozice 2+1 s možností úprav - komerční prostor 35 m2, výnos 180 000 Kč/rok - kondenzační plynový kotel (6 let) - uzavřený dvorek, terasa, studna - výhled na kostel Nanebevzetí Panny Marie - centrum Staré Boleslavi - dům nevyžaduje žádné úpravy Lokalita domu je naprosto výjimečná - v pěší vzdálenosti se nachází obchody, restaurace, školy, školky i autobusové nádraží. Okolí nabízí široké možnosti pro aktivní odpočinek, cyklostezky a procházky podél Labe. Do Prahy se pohodlně dostanete autem do 20 minut. Tento dům je ideální volbou pro ty, kteří hledají stylové bydlení s duší minulosti, ale zároveň chtějí praktickou investici s jistým výnosem. Možnost financování hypotečním úvěrem.
Prodej domu, 99 m2, Brandýs nad Labem, ul. Pavla Lista
Nabízíme k prodeji rodinný dům situovaný v klidné a vyhledávané části Brandýsa nad Labem. Dům je v udržovaném stavu, určený ke kompletní rekonstrukci…
Prodej rodinného domu Výletní Brandýs nad Labem - Stará Boleslav
Nabízíme k prodeji rodinný dům v klidné a žádané části Brandýsa nad Labem, ideální pro rodiny i páry hledající bydlení s rychlou dostupností Prahy.…