Makléř: Jiří Novák
Telefon: 777 276 ...
E-mail: novak@s ...
Zobrazit celý kontaktTelefon: 777 276 667
E-mail: novak@soccer-reality.cz
Nemovitost nabízí
Soccer Reality s.r.o.
ul. Bratří Dohalských 144/8, 190 00 Praha 9 - Vysočany
Zobrazit kontakt na RK777 276 667
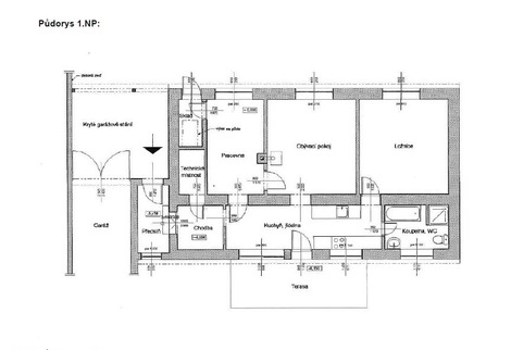
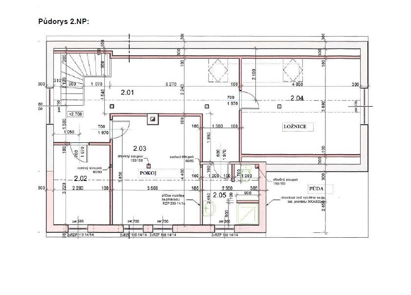
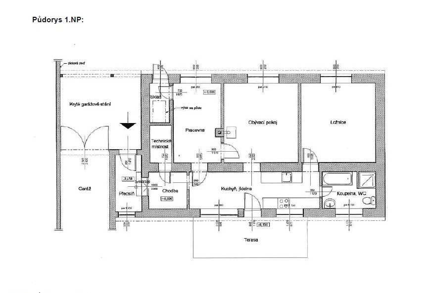
Soccer Reality vám zprostředkuje k prodeji prostorný rodinný dům o dispozici 5+1 v obci Křečkov, jen 3 km od Poděbrad. Dům se nachází na klidném místě na konci obce, za zahradou se rozprostírá ořechová alej a potok, což zajišťuje soukromí a příjemné prostředí. Celková užitná plocha domu je 150 m2, navíc je k dispozici zastřešená terasa o velikosti 24 m2 a krásná zahrada o rozloze 1.052 m2. Nemovitost byla postavena v 60. letech a v roce 2005 prošla rozsáhlou rekonstrukcí. V roce 2019 byla dokončena půdní vestavba a nástavba nad částí domu. Dům je zděný a suchý, se střechou z betonové tašky KM-Beta a novými krovy z let 2017-2019. V přízemí o rozloze 80 m2 se nachází předsíň, chodba, technická místnost, kuchyně s jídelnou, obývací pokoj, ložnice, pracovna a koupelna s vanou, sprchovým koutem a WC. Z jídelny je přímý vstup na zastřešenou terasu s pergolou, odkud vede cesta do okrasné i užitkové zahrady. Podkroví o výměře 70 m2 nabízí velkou otevřenou halu, dvě ložnice, koupelnu se sprchovým koutem a WC a komoru. Sklep má 12 m2. Dům je vybaven dřevěnými EURO okny, v přízemí je dlažba s podlahovým topením, v patře pak plovoucí laminátová podlaha Quickstep. Vytápění zajišťuje nový elektrokotel z roku 2024, v patře jsou instalovány dekorativní kamenné topné panely Geme-therm, alternativně lze využít krbová kamna Haas+Sohn v obývacím pokoji. Ohřev vody zajišťují dva bojlery - jeden ve sklepě a druhý v podkroví. Dům je napojen na veřejný vodovod a kanalizaci, k dispozici je plynová přípojka (aktuálně nevyužívaná) a vlastní studna s pitnou vodou. Dům je zateplen, část fasády byla nově dokončena v roce 2024 a 2025. Součástí prodeje je garáž, dílna, dvě kůlny, dřevník a letní kuchyně s komínem. Parkování je zajištěno v garáži, pod krytým stáním i před domem, kde jsou dvě stání ze zámkové dlažby. Zahrada je částečně okrasná a částečně užitková. Obec Křečkov nabízí dobrou občanskou vybavenost - základní školu pro první stupeň, dvě školky (včetně soukromé dětské skupiny), obchod, hospůdku, fotbalové hřiště a dětská hřiště. Dopravní dostupnost je výborná - do Poděbrad i Nymburka se pohodlně dostanete autobusem, vlakové spojení je v nedalekém Velkém Zboží. Do Prahy (Černý Most) se dostanete za 35 minut a do Mladé Boleslavi za 45 minut. Tento dům je ideální pro rodiny, které hledají klidné místo k bydlení s výbornou dostupností města a možností užívat si vlastní zahradu a přírodu hned za domem. Nemovitost můžete financovat hypotečním úvěrem.
Investice: Prodej rodinného domu v Nymburce, ul. Kovanická
Hledáte vhodnou investiční nemovitost? Máme pro vás rodinný dům, kde jsou aktuálně 2 samostatné byty připravené k rekonstrukci a prostor na půdě pro…
Prodej, domy/rodinný, 189 m2, Běrunice [ID 76325]
Prodej RD se stodolou a zahradou Vlkov nad Lesy. Nabízíme k prodeji prostorný rodinný dům v osobním vlastnictví o dispozici 5+kk, který se nachází v…