Aktuálně můžete v lokalitě Kladno vybírat z nabídky 41 domů.
Přehled nemovitostí: prodej domy > rodinné domy Zpět na přehled nabídek

Prodej rodinného domu 5+1 s velkým pozemkem ve Velké Bukové, v srdci Křivoklátských lesů, Velká Buková

986 m2

93 m2

osobní

E - Nehospodárná

965586

08.02.2026

Cena: 6890000 CZK / objekt

Poslat dotaz k nabídce
Zásady používání osobních údajů

Prodejce

Makléř: Vraštilová Jana

Telefon: 420 607 ...

E-mail: dreampr ...

Zobrazit celý kontakt

Nemovitost nabízí

CENTURY 21 Dream

Radlická 759/32, 120 00 Praha 2

www.century21.cz/kancelar-dream-247

Zobrazit kontakt na RK

Zobrazit všechny nabídky RK

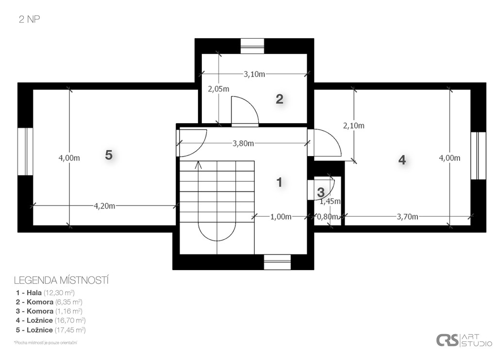
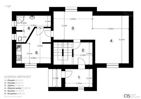
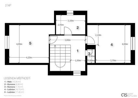
Rodinný dům v srdci přírody - Velká Buková, Křivoklátsko Nabízíme k prodeji rodinný dům 5+1 s velkým pozemkem o rozloze 986 m2 v obci Velká Buková, přímo v CHKO Křivoklátsko. Klidné a slunné místo na okraji obce nabízí soukromí, zeleň a krásné výhledy do okolní krajiny. Dům s užitnou plochou cca 141 m2 je částečně podsklepený, vytápěný elektrokotlem a krbem, ohřev vody zajišťuje bojler. Připojení na obecní vodovod, kanalizace na hranici pozemku. Součástí je garáž a parkování na vlastním pozemku. V roce 2024 proběhla částečná rekonstrukce. Zahrada nabízí dostatek prostoru pro odpočinek, pěstování nebo dětské hry. Terasa s výhledem do zahrady zve k ranní kávě i večernímu posezení. Lokalita: Velká Buková je malebná obec obklopená lesy, ideální pro klidné bydlení i rekreaci. V okolí jsou turistické trasy, cyklostezky i známý hrad Křivoklát. Křivoklát - 5 km Rakovník - 18 min Beroun - 30 min Praha - cca 50 min Veškerá občanská vybavenost v nedalekých Roztokách a Křivoklátě (škola, školka, obchod, lékař, restaurace). Dům je vhodný pro: rodiny hledající klidné bydlení v přírodě, zájemce o rekreační objekt s celoročním využitím, investory. Cena: 6.890.000 Kč Pro více informací nebo sjednání prohlídky mě neváhejte kontaktovat. PENB: E



Nahoru