Aktuálně můžete v lokalitě Kladno vybírat z nabídky 35 domů.
Přehled nemovitostí: prodej domy > rodinné domy Zpět na přehled nabídek

Prodej rodinného domu, 123 m2, Přišimasy, ul. Jana Čermáka

95 m2

123 m2

osobní

G - Mimořádně nehospodárná

917379

Cena: 5766200 CZK / objekt
Poznámka k ceně: + Dokončení výstavby cca 800 000 kč do 25.1.2027 1

Poslat dotaz k nabídce
Zásady používání osobních údajů

Prodejce

Makléř: Fürstová Monika

Telefon: 800 100 ...

E-mail: info@mm ...

Zobrazit celý kontakt

Nemovitost nabízí

M&M reality holding a.s.

Krakovská 1675/2, 110 00 Praha 1

www.mmreality.cz

Zobrazit kontakt na RK

Zobrazit všechny nabídky RK

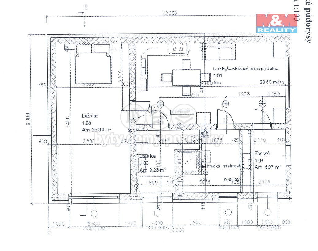
Už nechcete bydlet v bytě ale v rodinném domě se zahrádkou, pak tato nabídka je určená právě Vám. Nabízíme k prodeji rodinný dům 2+kk ve výstavbě, obytná plocha 78 m2 (možnost 3+kk 123 m2), pozemek 344 m2, Příšímasy, 3 km od Uval. 1.NP se skládá ze vstupní haly 6,97 m2, technické místnosti 6,39 m2, koupelny 8,28 m2, obývací pokoj s kuchyňským koutem a jídelnou 29,60 m2 a ložnice s francouzským oknem 26,64 m2. 2.NP dětský pokoj cca 45 m2. Dům je situován do klidné části obce, se střešními okny na jih, s dostatkem zeleně, nedaleko centra. Okolní zástavbu tvoří rodinné domy, přední část silnice a pole. Orientace západ. IS: elektřina, voda, kanalizace. Pozemek o celkové výměře 344 m2, lemují okrasné a ovocné stromy. V obci se nachází mateřská škola, restaurace, obchod, služby, sportovní areál, 3 km supermarket BILLA. 100 m od domu Bus zastávka 435,823 jede 6 min na železniční stanici do Úval a odtud 25 min na Masarykovo nádraží v Praze. Dokončení výstavby do 25. 1. 2027.



Nahoru