Makléř: Jan Hrnčíř
Telefon: 603 270 ...
E-mail: jan.hrn ...
Zobrazit celý kontaktTelefon: 603 270 707
E-mail: jan.hrncir@akropolisreality.cz
Nemovitost nabízí
Akropolis reality, s.r.o.
Pštrossova 6/1925, 110 00 Praha 1
Zobrazit kontakt na RK603 185 697
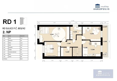
Nabízíme k prodeji výjimečný, luxusní nízkoenergetický rodinný dům o celkové užitné ploše 207 m2, z toho čistá podlahová plocha činí 189 m2 a terasa 18 m2. Dům je kompletně dokončen a připraven k okamžitému předání. Jedná se o moderní dvoupodlažní novostavbu s dispozicí 5+kk, terasou a balkonem, situovanou na samostatném, oploceném pozemku o rozloze 461 m2 (celkem 677 m2 včetně zastavěné plochy). Součástí nemovitosti je garáž a další parkovací stání. Tento exkluzivní projekt splňuje nejvyšší nároky na moderní bydlení - propojuje špičkové technologie, nadčasový design a maximální energetickou úspornost. Dům je vybaven rekuperací vzduchu, tepelným čerpadlem vzduch-voda a podlahovým vytápěním v celém objektu, což zajišťuje mimořádně nízké provozní náklady a vysoký komfort bydlení. Kvalitní cihelné zdivo s nadstandardním zateplením spolu s dřevěnými okny se zvýšenou tepelnou a zvukovou izolací garantují výborné izolační vlastnosti. Samozřejmostí jsou přípravy na venkovní žaluzie, zabezpečovací systém a klimatizaci. Dům je rovněž připraven na instalaci fotovoltaických panelů s bateriovým úložištěm, což umožňuje budoucí energetickou soběstačnost. Ve všech místnostech jsou datové zásuvky. Dispozice domu je promyšlená do posledního detailu a nabízí dostatek úložných prostor, šatnu, spižírnu i technickou místnost. Přízemí je řešeno jako plně bezbariérové a dominuje mu prostorný obývací pokoj s kuchyní a jídelnou. Velkoformátové posuvné prosklení přirozeně propojuje interiér s terasou a zahradou, čímž vytváří vzdušný a světlý obytný prostor. Dále se zde nachází koupelna s WC, technická místnost a přímý vstup do garáže. Zahrada díky vzrostlé zeleni poskytuje maximální soukromí a klid. V patře jsou umístěny čtyři prostorné ložnice, z nichž dvě mají přímý vstup na balkon, dále šatna a velkorysá koupelna s vanou a WC. Nemovitost se nachází v mimořádně klidné a vyhledávané rezidenční lokalitě obce Sulice, v sousedství luxusních rodinných domů na prostorných pozemcích. Lokalita nabízí ideální kombinaci soukromí, blízkosti přírody a zároveň výborné dostupnosti do Prahy - centrum je dosažitelné autem přibližně za 30 minut. V budoucnu se atraktivita lokality ještě zvýší díky plánovanému dokončení linky metra D (stanice Depo Písnice, cca 10 km). V docházkové vzdálenosti se nachází zastávky autobusových linek 335, 337 a 339 s návazností na metro C - Budějovická. Kompletní občanská vybavenost je samozřejmostí - supermarket Lidl je vzdálen pouhé 3 minuty chůze, v blízkosti je mateřská i základní škola, obchody, restaurace i sportoviště. Milovníci aktivního životního stylu ocení blízkost přírody - cyklostezky v kraji Josefa Lady, přírodní rezervaci Hornopožárský les i další možnosti relaxace a sportu v okolí. Tato nemovitost představuje ideální volbu pro náročné klienty hledající moderní, úsporné a komfortní bydlení v nádherné lokalitě s rychlou dostupností do Prahy.
Prodej krásného domu 5+KK v Hlubočince
Nabízíme na prodej krásný dům o dispozici 5+kk v Hlubočince. Jedná se o levou polovinu dvojdomu postaveného z kvalitních cihel Porotherm. Dům je…
Prodej rodinného domu 5+kk, 125 m2, Sulice, ul. Na Rovině
Nabízíme k prodeji prostorný rodinný dům 5+kk o užitné ploše 125 m2 v atraktivní lokalitě Hlubočinka, katastrální území Sulice, na jižním okraji…